5 Điều bắt buộc phải biết trước khi lắp đặt máy rửa chén tại nhà
Máy rửa chén đang dần trở thành thiết bị quen thuộc trong căn bếp hiện đại. Khi được lắp đặt máy rửa chén đúng chuẩn, thiết bị này giúp tiết kiệm thời gian vệ sinh sau bữa ăn, giữ không gian bếp gọn gàng và nâng cấp trải nghiệm sinh hoạt gia đình. Tuy nhiên, chỉ cần sai ở một bước nhỏ trong quá trình lắp đặt máy rửa chén tại nhà, máy có thể gặp các sự cố như rò rỉ nước, báo lỗi áp lực, chập điện hoặc giảm tuổi thọ đáng kể.
Để đảm bảo máy vận hành ổn định và tránh phải tháo lắp nhiều lần, dưới đây là 5 điều bắt buộc phải kiểm tra trước khi tiến hành lắp đặt máy rửa chén tại nhà.
1. Kiểm tra kích thước và vị trí lắp đặt máy rửa chén
Bước đầu tiên trong quá trình lắp đặt máy rửa chén là xác định đúng không gian đặt máy để tránh phải tháo ra lắp lại nhiều lần sau đó.
Đo chính xác chiều cao, chiều rộng và chiều sâu của hộc tủ hoặc vị trí dự kiến đặt máy để đảm bảo máy vừa khít, không bị cấn khi mở cửa hoặc kéo khay. Kiểm tra khoảng trống dành cho ống cấp nước, ống thoát nước và dây điện. Nếu máy lớn hơn không gian lắp đặt, thao tác kết nối đường ống sẽ rất khó thực hiện.
Chừa khoảng cách tối thiểu tầm 5 đến 10 cm tính từ mặt sau máy đến tường để máy thoát nhiệt tốt hơn và thuận tiện khi cần bảo trì. Nên lắp đặt máy rửa chén ở vị trí gần bồn rửa chén để đường thoát nước ngắn, hạn chế uốn cong ống và giúp việc lắp đặt dễ dàng hơn. Tránh đặt ở khu vực quá ẩm, nơi có ánh nắng chiếu trực tiếp hoặc sát bếp nấu vì những yếu tố này có thể ảnh hưởng đến linh kiện điện tử bên trong máy.
Bề mặt đặt máy cần chắc chắn và bằng phẳng. Không nên đặt máy lên thảm, bề mặt gồ ghề hoặc vật liệu mềm vì có thể khiến máy nghiêng và gây rò nước khi vận hành. Trước khi chuyển sang bước tiếp theo, bạn nên chú ý một số lỗi thường gặp để tránh phải điều chỉnh lại không gian lắp đặt:
- Quên đo khoảng cách từ đáy máy đến mặt sàn. Nếu mặt sàn không bằng phẳng, máy có thể nghiêng và gây rò nước.
- Không chừa khoảng trống đủ rộng để mở cửa máy và thao tác với đường điện hoặc đường nước khi cần điều chỉnh.

Khoang tủ cần đủ rộng, đủ sâu và chừa khoảng lùi phía sau để máy rửa chén thoát nhiệt khi lắp đặt.
Tham khảo: Máy rửa chén âm tủ FRANKE FDW 613 E5P F
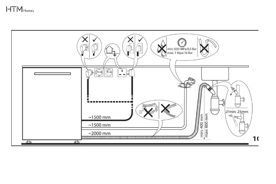
2. Đường cấp nước: Áp lực, van khóa và ống nối
Sau khi xác định xong vị trí lắp đặt máy rửa chén, bước tiếp theo là chuẩn bị hệ thống cấp nước vì đây là yếu tố trực tiếp ảnh hưởng đến hiệu suất rửa của máy.
Nguồn nước cấp cần có áp lực tối thiểu từ 0.03 MPa, tương đương với khoảng 3m cột nước, để máy vận hành đúng chu trình. Sử dụng van cấp nước riêng và chọn đầu nối loại ren 21mm hoặc đúng theo chuẩn của máy.
Nếu khu vực sử dụng nước có cặn vôi, nên bổ sung muối rửa định kỳ hoặc lắp bộ lọc làm mềm nước đầu vào. Trước khi lắp, nên kiểm tra áp lực nước. Nếu áp lực quá thấp, máy sẽ không đủ lực để phun rửa. Ngược lại nếu áp lực quá cao, gioăng cao su dễ bị vỡ hoặc gây rò nước.
Van khóa nước cần chắc chắn và dễ thao tác đóng mở. Nếu van đã cũ hoặc bị han gỉ, nên thay mới để tránh rỉ nước sau khi lắp đặt. Sử dụng ống nối nước đúng kích thước và siết chặt bằng đai kẹp để giữ cố định. Không nên dùng ống quá mỏng hoặc chất lượng thấp. Trước khi kết nối chính thức, nên cho nước chảy thử để kiểm tra xem trong đường ống có cặn bẩn hoặc vật lạ hay không.
Khi hoàn thiện bước này, bạn nên kiểm tra thêm một lần để tránh các lỗi dễ gặp sau đây:
- Dùng ống mềm quá dài khiến áp lực nước bị giảm
- Quên khóa nước hoặc để van ở trạng thái mở khi lắp thiết bị
- Không xả đường ống trước nên cặn bẩn đi thẳng vào hệ thống máy
3. Đường thoát nước và chống chảy ngược
Trong quá trình lắp đặt máy rửa chén, phần thoát nước là một bước không nên bỏ qua. Máy rửa chén cần có đường ống thoát nước riêng và phải được nối vào hệ thống thoát nước của bồn rửa hoặc đường ống xả chính trong nhà. Để tránh tình trạng nước thải chảy ngược lại vào máy, cần tạo bẫy khí gọi là air gap hoặc uốn cao đường ống thoát trước khi dẫn vào ống chính theo phương pháp high loop. Đây là cách được nhiều hướng dẫn quốc tế khuyến nghị trong các tiêu chuẩn lắp đặt máy rửa chén vì giúp hạn chế mùi và hạn chế tắc nghẽn.
Khi tiến hành lắp đặt máy rửa chén, cần đảm bảo đường ống thoát nước có kích thước đúng tiêu chuẩn, không dùng ống có đường kính quá nhỏ và tránh để ống bị gập hoặc bẻ cong quá mức. Sau khi kết nối, nên kiểm tra các mối nối để đảm bảo ống không bị kéo căng hoặc bị ép sát vào thành tủ vì có thể gây nứt hoặc tuột đầu nối theo thời gian.
Lưu ý thường gặp khi lắp đặt máy rửa chén:
- Đặt ống thoát nước quá thấp dẫn đến hiện tượng nước thải chảy ngược vào máy
- Không thiết lập air gap hoặc không uốn cao ống thoát theo phương pháp high loop
- Các mối nối không siết chặt khiến nước rò rỉ trong quá trình xả.

Ống thoát nước cần được uốn cao trước khi nối vào ống xả để tránh nước thải chảy ngược vào máy.
Xem chi tiết sản phẩm: Máy rửa chén âm tủ FRANKE FDW 614 D10P DOS LP C
4. Nguồn điện và an toàn điện
Phần điện là bước nhiều gia đình thường lướt qua rất nhanh trong quá trình lắp đặt máy rửa chén, nhưng đây lại là yếu tố ảnh hưởng trực tiếp đến độ ổn định của máy trong suốt quá trình sử dụng. Máy rửa chén yêu cầu nguồn điện riêng, công suất chịu tải từ 2500W trở lên, không nên dùng chung ổ với thiết bị khác. Điện áp sử dụng tại Việt Nam là 220V – 50Hz, tuy nhiên vẫn nên kiểm tra lại thông số của máy để chắc chắn tương thích.
Bắt buộc phải có dây nối đất (grounding) để hạn chế rò điện và tăng độ an toàn khi sử dụng. Không nên dùng dây nối dài hoặc ổ cắm chuyển đổi nhiều lỗ, thay vào đó nên dùng dây cấp điện cố định có tiết diện phù hợp với công suất của máy.
Sau khi đấu nối, nên kiểm tra lại các mối tiếp điện và chỉ chạy thử khi bên trong máy chưa có chén dĩa, để dễ phát hiện sự cố nếu có. Để đảm bảo an toàn điện, nên tránh những lỗi dưới đây:
Để đảm bảo an toàn điện, nên tránh những lỗi dưới đây:
- Bỏ qua việc nối dây nối đất (grounding)
- Sử dụng ổ cắm hoặc dây điện chất lượng thấp
- Cấp điện khi các mối nối chưa được siết chặt kỹ
5. Kiểm tra phụ kiện và chạy thử nghiệm
Khi mở thùng máy, nên dành chút thời gian kiểm tra lại các phụ kiện đi kèm như ống cấp, ống thoát, đai cố định, ốc vít và hướng dẫn sử dụng để xem có thiếu hoặc chi tiết nào bị móp, rạn không. Nếu cảm thấy phụ kiện mỏng hoặc không chắc chắn, việc chuẩn bị thêm một bộ kit lắp đặt tốt hơn ngay từ đầu sẽ giúp yên tâm hơn khi máy vận hành lâu dài.
Sau khi lắp xong, nên để máy chạy một vòng thử khi chưa có chén dĩa bên trong. Lần chạy này giúp bạn quan sát xem máy có thoát nước ổn định không, tiếng máy có bất thường không và các khớp nối nước có xuất hiện vệt rò hay đọng nước ở bất kỳ vị trí nào.
Trong lúc máy hoạt động thử, chỉ cần chú ý khu vực ống thoát nước và các đầu nối. Nếu phát hiện nước đọng hoặc máy rung mạnh hơn bình thường, xử lý ngay lúc này sẽ nhanh và gọn hơn nhiều so với khi đã dùng thường xuyên.
Hướng dẫn của nhà sản xuất thường có ghi rõ cách chạy thử và cách máy báo lỗi nếu có vấn đề kỹ thuật. Nhiều người bỏ qua phần này nên chỉ phát hiện lỗi khi máy bắt đầu dùng hàng ngày, lúc đó việc kiểm tra lại sẽ mất thời gian hơn.
Lời kết
Việc lắp đặt máy rửa chén tưởng đơn giản nhưng chỉ cần bỏ sót một chi tiết nhỏ cũng có thể gây rò nước hoặc lỗi vận hành. Khi 5 điều trên được thực hiện đầy đủ ngay từ đầu, máy sẽ chạy ổn định hơn và hạn chế tối đa sự cố trong quá trình sử dụng.
Nếu bạn đang chuẩn bị lắp đặt máy rửa chén tại nhà hoặc muốn kiểm tra lại vị trí cấp thoát nước và nguồn điện cho đúng chuẩn, bạn có thể gửi hình hoặc thông tin không gian bếp, HTM Homes sẽ hỗ trợ xem trước để việc lắp đặt diễn ra gọn và không phải chỉnh sửa nhiều lần.
Thông tin khác
Bí quyết gia đình
Đón đầu 15 xu hướng thiết kế bếp cao cấp 202618
12-2025
Xu hướng thiết kế bếp cao cấp 2026 dự kiến sẽ phản ánh một sự chuyển dịch rõ rệt trong tư duy thiết kế nội thất. Không gian bếp ngày càng được nhìn nhận như một không gian sống thực thụ, nơi công năng, thẩm mỹ và cảm xúc sử dụng cùng song hành. Trong bối cảnh đó, bếp không còn là khu vực chức năng đơn thuần, mà trở thành trung tâm sinh hoạt, góp phần định hình phong cách sống và giá trị lâu dài của mỗi ngôi nhà.
Bí quyết gia đình
5 Lý do nồi lẩu bếp từ cao cấp được ưa chuộng hiện nay08
12-2025
Nồi lẩu bếp từ cao cấp đang trở thành lựa chọn yêu thích của nhiều gia đình hiện đại nhờ sự tiện lợi, an toàn và khả năng giữ cho không gian bếp luôn gọn gàng, tinh tươm. Một chiếc nồi đẹp kết hợp cùng bếp từ mang đến trải nghiệm nấu lẩu thoải mái hơn, hạn chế mùi, kiểm soát nhiệt ổn định và phù hợp với phong cách sống tinh giản của các căn hộ hiện đại.
Bí quyết gia đình
Máy hút mùi kiểu đảo sang trọng, điểm nhấn đẳng cấp cho căn bếp hiện đại30
11-2025
Máy hút mùi kiểu đảo sang trọng được ưa chuộng trong bếp cao cấp nhờ thiết kế đẹp, hiệu suất hút mùi vượt trội. Thiết kế treo độc lập đầy ấn tượng phù hợp với xu hướng bếp mở hiện đại, góp phần nâng tầm phong cách sống cho toàn bộ không gian bếp. Nếu bạn đang tìm hiểu để lựa chọn máy hút phù hợp nhất cho không gian của mình, hãy tham khảo ngay bài viết sau của HTM Homes để có cái nhìn đầy đủ và chính xác trước khi quyết định.
Bí quyết gia đình
Tiêu chuẩn kích thước phụ kiện tủ bếp dưới để lựa chọn và lắp đặt30
11-2025
Tính thẩm mỹ, tuổi thọ và công năng của toàn bộ tủ bếp phụ thuộc vào độ chính xác của kích thước phụ kiện tủ bếp dưới. Việc lựa chọn đúng kích thước được xem là “chìa khóa vàng” giúp thiết bị hoạt động trơn tru và tận dụng triệt để không gian mặt dưới bếp. Bài viết dưới đây của HTM Homes sẽ cung cấp đầy đủ các tiêu chuẩn kích thước của từng nhóm phụ kiện cũng như những lưu ý khi lựa chọn kích thước phù hợp để tạo nên căn bếp đẹp và khoa học.
Bí quyết gia đình
Combo thiết bị bếp Châu Âu – giải pháp đồng bộ và sang trọng cho gian bếp30
11-2025
Trong thiết kế bếp cao cấp, yếu tố đồng bộ giữa các thiết bị giữ vai trò quyết định đến công năng và thẩm mỹ của toàn bộ không gian. Combo thiết bị bếp Châu Âu đang trở thành xu hướng lựa chọn mới cho các gia đình hiện đại, bởi không chỉ tối ưu việc bố trí và vận hành, mà còn mang lại trải nghiệm nấu nướng tiện nghi và sang trọng hơn. Trong đó, Franke là thương hiệu thiết bị bếp đến từ Thụy Sĩ với hơn 110 năm phát triển và nổi bật nhờ thiết kế tinh tế, công nghệ chuẩn châu Âu và độ bền vượt trội.
Tại Việt Nam, HTM Homes là đơn vị phân phối chính hãng các dòng thiết bị bếp Franke, cung cấp combo sản phẩm đồng bộ từ bếp, hút mùi, chậu và vòi rửa đến lò nướng vi sóng âm tủ. Mỗi sản phẩm được tuyển chọn theo tiêu chuẩn kỹ thuật và phong cách thiết kế quốc tế, đáp ứng nhu cầu của những không gian bếp đề cao sự sang trọng, hiện đại và hiệu quả sử dụng lâu dài. Đây là lựa chọn lý tưởng cho những gia chủ muốn hoàn thiện gian bếp chuẩn châu Âu tinh tế trong thiết kế và mạnh mẽ trong công năng.
Bí quyết gia đình
Lò vi sóng kết hợp nướng nhập khẩu – giải pháp 2in1 cho gian bếp hiện đại30
11-2025
Trong thiết kế bếp cao cấp, các thiết bị đa năng luôn được ưu tiên để vừa tối ưu công năng vừa tiết kiệm diện tích. Lò vi sóng kết hợp nướng nhập khẩu là một trong những lựa chọn nổi bật nhờ khả năng tích hợp hai tính năng trong một thiết bị duy nhất, đáp ứng nhu cầu nấu nướng linh hoạt và nhanh chóng. Không chỉ mang lại sự tiện lợi khi chế biến món ăn, thiết kế âm tủ hiện đại cùng công nghệ Châu Âu còn giúp không gian bếp trở nên sang trọng và đồng bộ hơn.
Tại HTM Homes, các dòng lò vi sóng kết hợp nướng được lựa chọn theo tiêu chuẩn chất lượng, độ bền và công nghệ của những thương hiệu uy tín, phù hợp nhiều phong cách thiết kế từ tối giản đến luxury. Đây là giải pháp lý tưởng cho những gia đình chú trọng trải nghiệm nấu nướng và mong muốn sở hữu một không gian bếp hiện đại, tiện nghi, bảo đảm tính thẩm mỹ cao.






